Ga naar hoofdinhoud

Rijkevoort, Achter de Molen fase 3

Waar:

Het plangebied wordt aan de zuidzijde begrensd door de weg Bonkelaer en aan de oostzijde door de achtertuinen van de woningen op de percelen Hapsedijk 13 tot en met 21, oneven. Aan de west- en noordzijde liggen percelen die deel uitmaken van het buitengebied.

Wat voor soort woning:

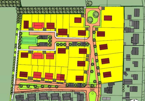
De ontwikkeling in het plangebied bestaat uit zestien twee-aaneen gebouwde en veertien vrijstaande woningen. De vrijstaande woningen komen op ruime kavels aan de buitenzijden van het gebied, de twee-aaneen gebouwde woningen in het middengebied. In het plan is ruimschoots voldoende groen opgenomen in de vorm van twee “hofjes”. Daar waar het gebied grenst aan het buitengebied is een stevige groene afscheiding voorzien.

Illustratie concept stedenbouwkundig plan en verkavelingConcept stedenbouwkundig plan en verkaveling

Wanneer:

Op bovenstaand kaartje is de status van de kavels aangegeven.

Foto van José van Uden José van Uden verkoopmedewerker bouwkavels | gemeente Land van Cuijk